案例介紹
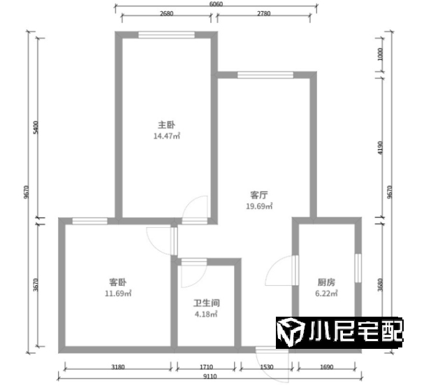
北京市 - 懷柔區(qū)
勝悅居
戶型圖








免費申請設計
設計師上門服務全程免費,禁止以任何形式收取費用。