案例介紹
河北省 - 廊坊市 - 三河市
華泰
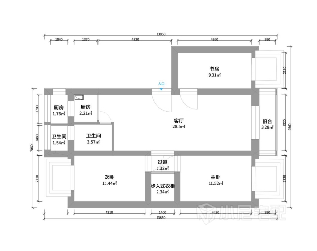
戶型圖

進門正對衣帽間隱形門,隱形門采用裝飾畫裝飾,藝術感很強

客廳簡單白色調為主,干凈自然

餐廳一樣為白色調為主,與客廳相呼應

衛(wèi)生間采用暖色墻磚,顯得溫暖

廚房空間小,顯得狹小,充分利用陽臺空間

書房設置雙人位,休閑娛樂一體

主臥室全屋定制榻榻米,選用暖色調為主

次臥室全屋定制榻榻米,選用暖色調為主
免費申請設計
設計師上門服務全程免費,禁止以任何形式收取費用。