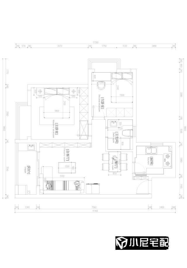
案例介紹
江蘇省 - 蘇州市 - 吳中區(qū)
錦溪苑
戶(hù)型圖








