案例介紹
北京市 - 懷柔區(qū)
金第夢想山
業(yè)主家一家三口,喜歡整潔干凈,對白色很執(zhí)著
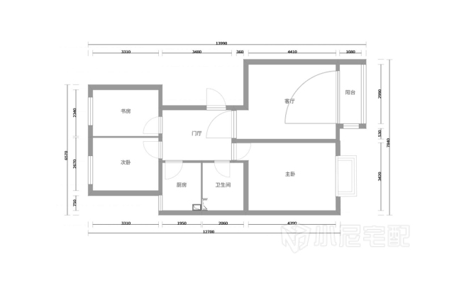
戶型圖







